| Welcome to Outdoor Garage. We hope you enjoy your visit. This forum deals mainly with "Outdoor Garage" type topics. Topics including car & truck maintenance, motorcycles stuff, small engines, engine maintenance & service, mowers, mini skid steer, generators, RV - Tents - Camping, among other things. You're currently viewing our forum as a guest. This means you are limited to certain areas of the board and there are some features you can't use. If you join our community, you'll be able to access member-only sections, and use many member-only features such as customizing your profile, sending personal messages, and voting in polls. Registration is simple, fast, and completely free. Join our community! If you're already a member please log in to your account to access all of our features: |
| DIY - Jib Boom - Ramrod 915 | |
|---|---|
| Tweet Topic Started: Aug 24 2015, 03:16 PM (119 Views) | |
| tibadoe | Aug 24 2015, 03:16 PM Post #1 |
|
Ready to Ride
![]() ![]() ![]()
|
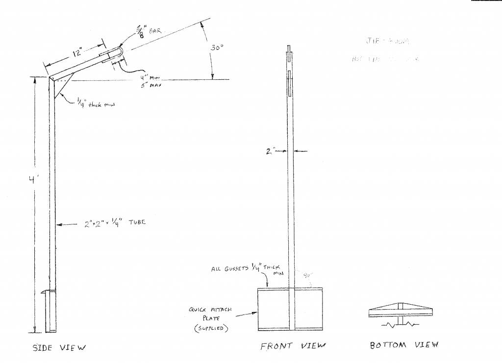
As for the Jib Boom I decided to be smart. Most sites offer the pre-made ones shipped for about 600 -800 bucks. Figured if I purchased a Universal Mount Plate and penciled up my own set of plans I would save a few dollars. So I drew up my plans and took them to a local welding/machine shop. Bingo.......got a quote for $150 to assemble & weld my custom Jib according to my drawing. So I ordered the Universal Toro Mount Plate from PalletForks.com Talk about fast shipping......got it in two days courtesy of Fed-Ex. Next week I will drop off the plate and plans. Was told it shouldn't take more than a couple hours. Will get some pictures and post them in the near future. |
![]() |
|
| tibadoe | Aug 24 2015, 03:20 PM Post #2 |
|
Ready to Ride
![]() ![]() ![]()
|
Dropped off the mounting plate & plan for the Jib this morning. Can't wait to see how it comes out.
|
![]() |
|
| tibadoe | Aug 24 2015, 03:22 PM Post #3 |
|
Ready to Ride
![]() ![]() ![]()
|
Picked up the Jib from the welder.....he did a great job! I guess my plans were pretty good after all. ![]() ![]()
|
![]() |
|
| 1 user reading this topic (1 Guest and 0 Anonymous) | |
| « Previous Topic · Mini Skid Attachments · Next Topic » |





![]](http://z5.ifrm.com/static/1/pip_r.png)





3:07 PM Jul 11